头部

卢文浩地块新建建设工程规划许可证批后公告


来源:连州市自然资源局 发布时间:2025-12-17 10:58:00 字体大小: 浏览次数:-

  我局收到卢文浩提出的卢文浩地块新建建设工程规划许可证的申请及有关材料。现根据《中华人民共和国城乡规划法》、《广东省城乡规划条例》等有关规定,对该项目进行批后公告。

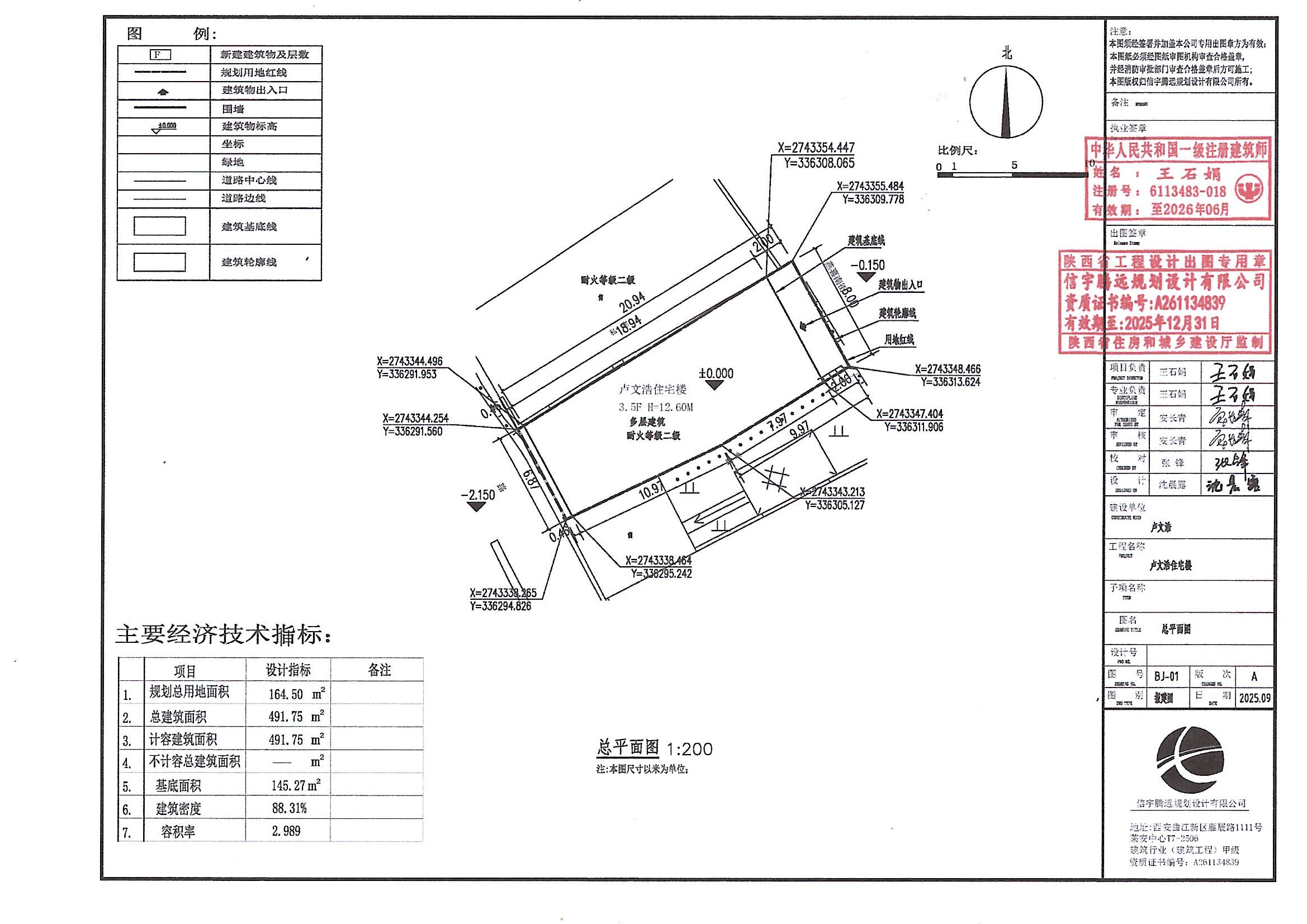
  一、项目位置:连州镇燕喜南街37号

  二、公示时间:自建设工程开工之日起至通过规划验收之日止

  三、公示方式:连州市政府门户网

  四、公示内容:

  1、建设工程规划许可证编号:建字第4418822025GG0223564号

  2、建设单位:卢文浩

  3、建设项目名称:住宅

  4、建设规模:新建框架结构3层半,建筑面积491.75平方米。

  

卢文浩.JPG


                                                                                   连州市自然资源局    

                                                                              2025年12月17日  


footer底部