头部

连州市新城区中医院配套建设项目建设工程规划许可证批后公告


来源:连州市自然资源局 发布时间:2025-12-17 11:04:08 字体大小: 浏览次数:-

  我局收到连州市中医院提出的连州市新城区中医院配套建设项目建设工程规划许可证的申请及有关材料。现根据《中华人民共和国城乡规划法》、《广东省城乡规划条例》等有关规定,对该项目进行批后公告。

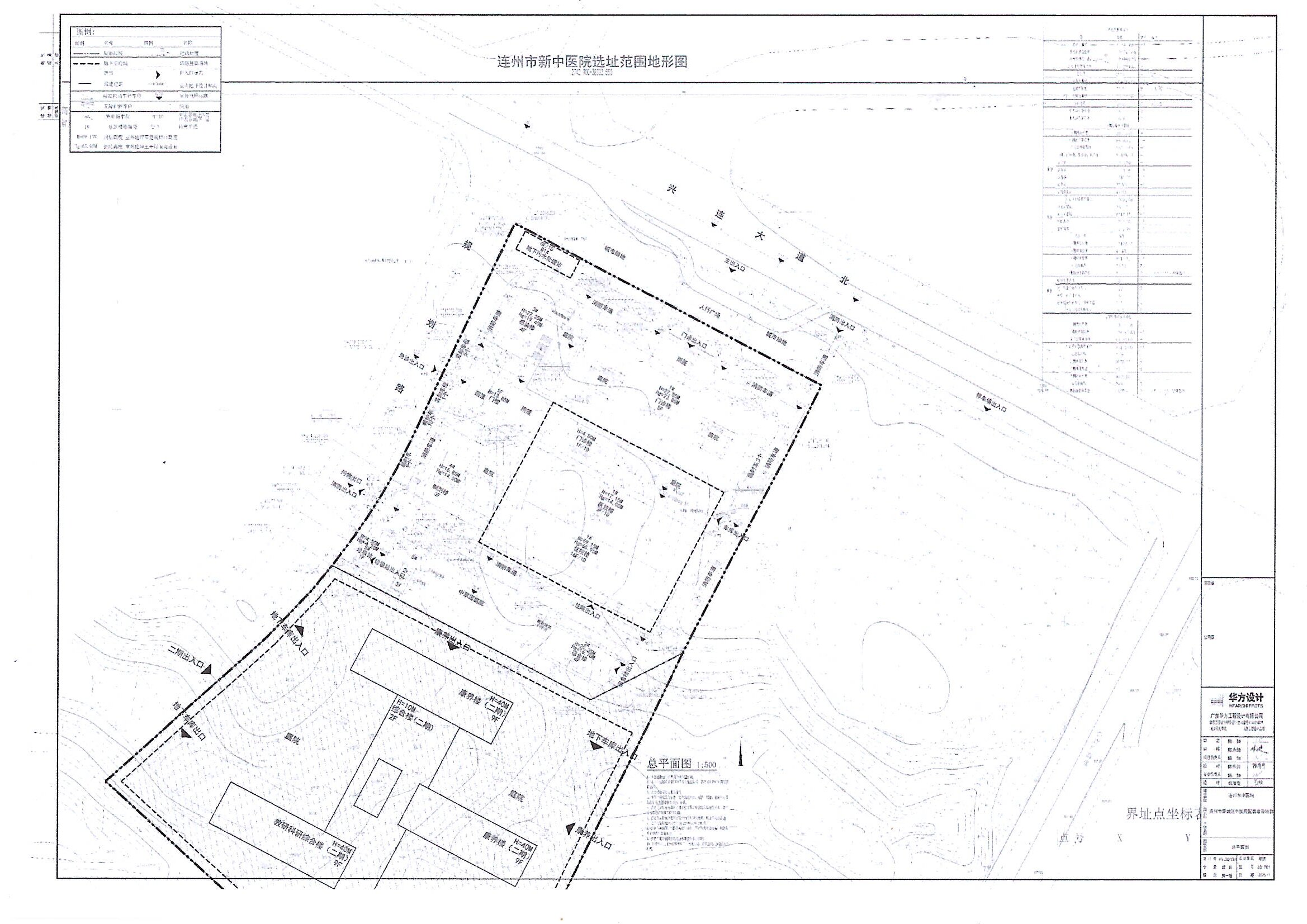
  一、项目位置:连州镇兴连大道(北段)南侧地段

  二、公示时间:自建设工程开工之日起至通过规划验收之日止

  三、公示方式:连州市政府门户网

  四、公示内容:

  1、建设工程规划许可证编号:建字第4418822025GG0217581号

  2、建设单位:连州市中医院

  3、建设项目名称:连州市新城区中医院配套建设项目

  4、建设规模:新建门楼、门诊楼、医技楼、住院楼51198.26平方米,宿舍楼1993.56平方米,感染楼1674.06平方米,制剂楼1512平方米,垃圾站79.8平方米,医用液氧站42.88平方米,污水处理站280.25平方米,地下车库6918.18平方米,风雨连廊1651.26平方米,屋面梯房1242.99平方米,总建筑面积66593.24平方米。

 

新中医院.JPG

                                                                                               连州市自然资源局    

                                                                                              2025年12月17日


footer底部