我局收到蔡美兰提出的蔡美兰地块新建建设工程规划许可证的申请及有关材料。现根据《中华人民共和国城乡规划法》、《广东省城乡规划条例》等有关规定,对该项目进行批后公告。
一、项目位置:连州镇城北鸬鹚咀地段
二、公示时间:自建设工程开工之日起至通过规划验收
之日止
三、公示方式:连州市政府门户网
四、公示内容:
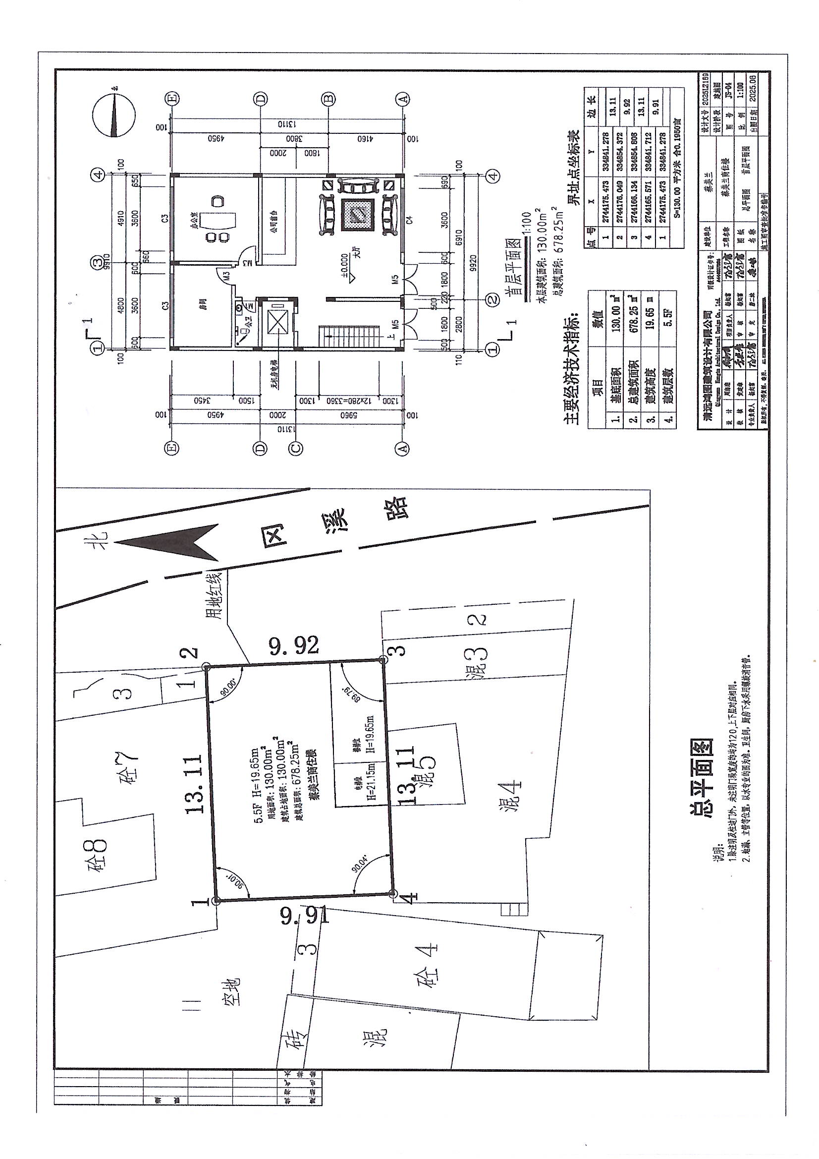
1、建设工程规划许可证编号:建字第4418822026GG0007691号
2、建设单位:蔡美兰
3、建设项目名称:住宅
4、建设规模:新建框架带电梯五层半,建筑面积678.25平方米。
连州市自然资源局
2026年1月16日
首页
政务公开
资讯中心
政务服务
招商引资
走进连州
网络问政
粤公网安备 44188202000031号